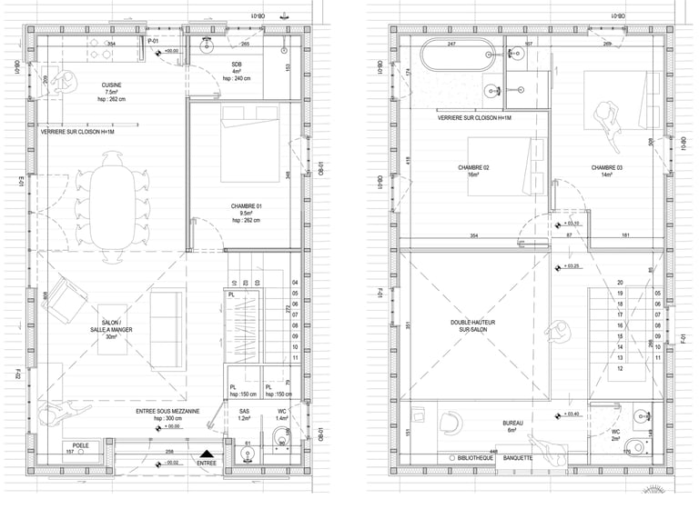
MAISON BOIS A REGNEVILLE-SUR-MER
programme construction d'une maison individuelle à ossature bois
lieu regneville-sur-mer (50)
client privé
surface 95 m2
budget 220 500 € ht
mission études, pc, pro (projet non réalisé)
date 2018
matériaux bardage en bois brulé








