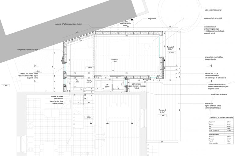
EXTENSION BOIS A LANDRELLEC
programme extension en ossature bois d'une maison individuelle
lieu landrellec (22)
client privé
surface 30 m2
budget 50 500 € ht
mission complète
date 2015 (livraison)
entreprise motreff
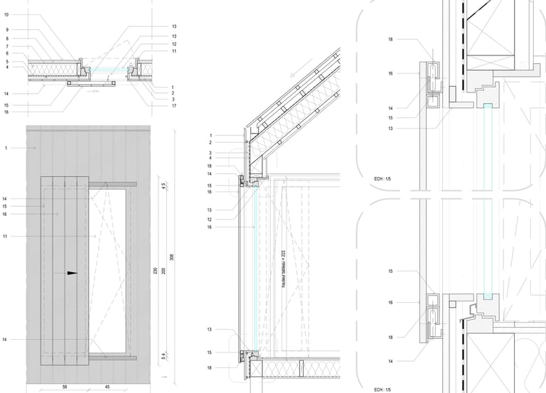
matériaux ossature bois, bardage peint en noir de falun








