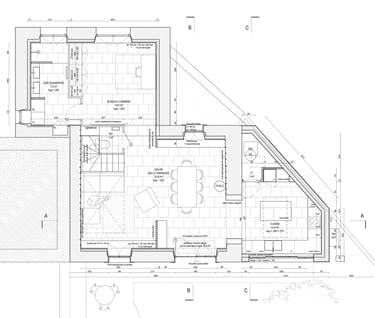
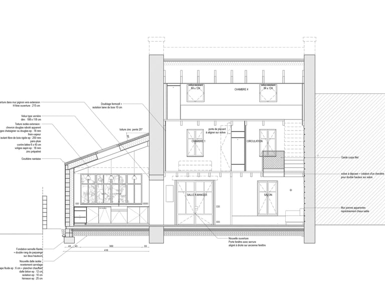
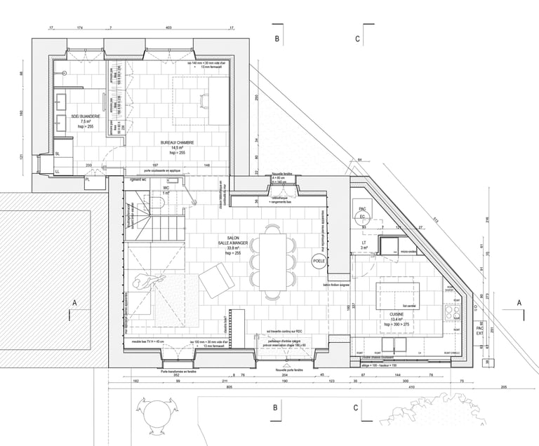
MAISON KERLOUAN

programme rénovation et extension d'une maison individuelle

lieu Kerlouan (29)

client privé

surface 130 m2

mission esquisse, permis de constuire

date 2024

matériaux rénovation isolation briques de chanvre, enduit chaux-sable